施設報告
東関東自動車道水戸線 茨城空港北ICのLED照明設備
国内営業部 東京広域営業所 官公需営業課
国内営業部 東日本技術設計センター
キーワード
東関東自動車道水戸線,茨城空港北IC,高速道路料金所,省メンテナンス,LED
「レディオック フラッド ネオ シリーズ」のご案内
駐車場などのエリア照明はもちろん、豊富なバリエーションでサインボード向けなど幅広く使用できるLED投光器「レディオック フラッド ネオ シリーズ」の詳細は以下よりご覧いただけます。
- LEDioc FLOOD NEO シリーズ(レディオック フラッド ネオ シリーズ)
1. はじめに
茨城空港の開港に先駆けて,2010年3月6日,東関東自動車道水戸線が開通した。今回開通した区間は,北関東自動車道と接続する茨城町JCTから,茨城空港北ICまでの延長8.8kmの高速道路で,将来的には東関東自動車道の潮来ICへと結ばれる予定である。この路線の開通により,茨城空港へのアクセス向上をはじめ,第三次救急医療機関への搬送エリア拡大や,沿線で栽培されるメロン等農作物の販路拡大が期待されている。
今回,茨城空港北料金所にLED投光器を納入したので,以下にその概要を報告する。
図1 施設近景
図2 施設全景
2. 照明設計
2.1 施設概要
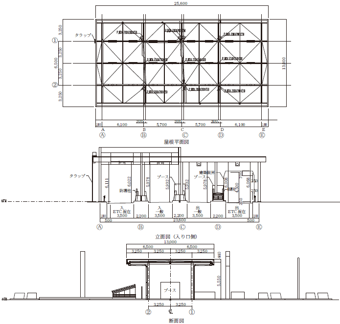
図3 ゲート形状
料金所ゲートの形状を図3に示す。
料金所ゲートのレーン幅員が3.5mで,2.2mのアイランドを挟んで出口・入口各2本の計4本あり,(各1レーンがETCレーン)上部には,大きさが幅25.6m×長さ13.0mの屋根がある。
2.2 設計照度
料金所ゲートの設計照度は,旧日本道路公団の設計要領より200ℓxを採用した。
2.3 経済性の比較
従来はHf蛍光灯32W2灯用器具(反射笠付)を使用していたが,メンテナンス性向上のため下記の条件を考慮し検討を行い,経済比較を行った。
- 長寿命であること
- 保守管理に手間が掛からないこと
上記2点に加え,取付方向・取付角度を問わない点が考慮され,LED投光器LEDioc FLOOD NEO™を採用することとなった。寿命に関しては,従来使用していた蛍光灯の寿命が12000時間であるのに対し,LEDioc FLOOD NEO™は40000時間,10年間ランプ交換不要となる。独自の配光技術を駆使したムラのないフラットな光(詳細は以前のIWASAKIテクニカルレポート参照)もこの器具採用の理由の1つである。
経済比較の結果を表1に示す。
| 蛍光灯 | LED | |
|---|---|---|
| 器具 | FHRW4251AEU9 | ECF0973N/SA1/2.4/DG |
| ランプ | FHF32EX-N-H×2 | 16W LED×6 |
| 全光束(ℓm) | 9030 | 6900 |
| ランプ寿命(h) | 12000 | 40000 |
| 1台あたりの消費電力(kWh) | 0.089 | 0.11 |
| 電気料金(円/kWh) | 21 | 21 |
| 年間点灯時間(h) | 3650 | 3650 |
| 電力料金(円/年) | ¥163,724 | ¥168,630 |
| ランプ交換本数 (本数×年間点灯時間/寿命×0.7) |
21 | 0 |
| 交換ランプ費用(円/年) | ¥58,800 | ¥0 |
| ランプ交換人件費(円/年) | ¥52,500 | ¥0 |
| ランニングコスト (電気料金+交換ランプ費+ランプ交換人件費) |
¥275,024 | ¥168,630 |
| ランニングコスト(円)増減額 | - | ¥-106,394 |
| ランニングコスト比較 | 100% | 61% |
| 年間CO₂排出量(t) | 3.35 | 3.45 |
| ランニングコスト(円) 初年度 | ¥275,024 | ¥168,630 |
| 前年度+ランニング(円) 2年目 | ¥550,049 | ¥337,260 |
| 前年度+ランニング(円) 3年目 | ¥825,073 | ¥505,890 |
| 前年度+ランニング(円) 4年目 | ¥1,100,098 | ¥674,520 |
| 前年度+ランニング(円) 5年目 | ¥1,375,122 | ¥843,150 |
| 前年度+ランニング(円) 6年目 | ¥1,650,146 | ¥1,011,780 |
| 前年度+ランニング(円) 7年目 | ¥1,925,171 | ¥1,180,410 |
| 前年度+ランニング(円) 8年目 | ¥2,200,195 | ¥1,349,040 |
| 前年度+ランニング(円) 9年目 | ¥2,475,220 | ¥1,517,670 |
| 前年度+ランニング(円) 10年目 | ¥2,750,244 | ¥1,686,300 |
- 【計算条件】
- ※ランニングコスト:年間(電気代+交換ランプ費)=台数×消費電力(kW/台)年間点灯時間(3650時間)×電気料金(21円/kWh)+(台数×年間点灯時間(3650時間))÷(ランプ寿命(時間)×0.7)×ランプ価格
- ※CO₂排出係数は,「日本照明器具工業会・日本電球工業会(2010.8)」による。(1kWあたり0.43kg-CO₂/kWh)
3. 設備概要
従来器具は,1レーンに2列×3台=6台設置していたが,今回採用となったLEDioc FLOOD NEO™は,ゲート上屋の梁に,1レーンに対して5灯配置とした。内側のレーンは千鳥配置,外側のレーンは片側配置とすることにより,周辺への漏れ光も考慮した。従来器具は車線上に設置されていたが,車線の端部から中心を照射することにした。車線端部への配置にすることで,交換作業を比較的容易に行うことができる。
LEDioc FLOOD NEO™は,電源ユニット内蔵で設置場所を選ばない省施工形の投光器である。角度調整機能付きであるため現地での調整が容易に行えたことも利点の1つである。(図5・図6)
さらに,LEDは紫外線の放射量が少なく,誘虫性は,水銀ランプを100とした場合,35とかなり低くなっている。本施設のような虫の飛来が予想される場所には適していると言える。
照度分布図を図4に示す。
照度は,各レーンで概ね200~230ℓx程度を確保した。従来器具と遜色ない照度・均斉度に達している。LED投光器は光の指向性が強いため,取付角度が高いとグレアを生じる危険性がある。本施設においては30度以上にはならないよう取付角度をおさえ,ドライバーへの眩しさを低減するよう努めている。
図5 1灯用器具
図6 2灯用器具
4. おわりに
本施設は,光源として,従来のHf蛍光灯に変わり,LEDを使用することで,電力量の削減を可能とし,CO₂削減に貢献することができた。また,必要な照度も十分に満たしており,施主にも大変満足いただいている。本施設に納入以降,同じLED投光器が関東圏の料金所でも納入され,今後の採用も多いに期待できるところである。
省エネルギー化や,温室効果ガス削減が求められている昨今,LEDは今後の普及発展に大いに期待できる光源である。弊社も益々貢献できるよう強く願う次第である。
最後に本施設照明設備の完成にあたり,御指導,御協力頂いた関係各位に深く感謝申し上げると共に,心より御礼申し上げる。
- ※本設計は,2010年IWASAKI環境照明賞を受賞。
この記事は弊社発行「IWASAKI技報」第23号掲載記事に基づいて作成しました。
(2010年11月15日入稿)
テクニカルレポートに掲載されている内容は、原稿執筆時点の情報です。ご覧の時点では内容変更や取扱い中止などが行われている可能性があるため、あらかじめご了承ください。
