施設報告
新北九州空港連絡橋道路 - 海上橋の照明 -
国内営業事業部 九州技術設計センター
国内営業事業部 福岡営業所 第二営業課
キーワード
新北九州空港連絡橋,海上橋,光漏れ対策,高欄照明,道路照明
「レディオック ロード 低位置照明」のご案内
ポール設置が難しい箇所や高欄部、光害への配慮が必要な箇所に適したLED道路照明「レディオック ロード 低位置照明」の詳細は以下よりご覧いただけます。
- LEDioc ROAD(レディオック ロード) 低位置照明
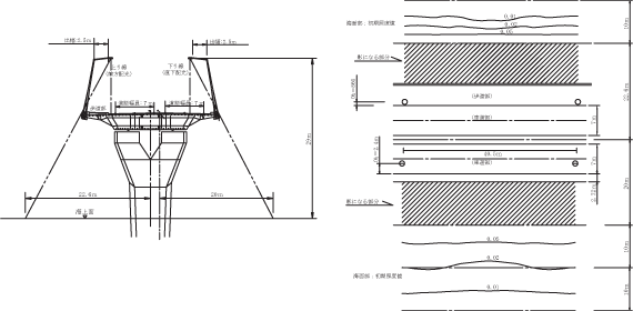
3.照明設備概要 (続き)
3.2 左右側径間部道路照明(ポール照明部)
アーチ橋部の前後の道路照明は,片側に歩道が設置されているが,昼間の景観上から同一の出幅の照明柱となった。(図10,図11)
図10 ポール照明部昼景
図11 ポール照明部夜景
(1)光学設計条件
- 路面輝度
- 海上部のため,交通に影響を及ぼす光が周辺にほとんど存在しないが,前後の接続道路照明の設計輝度との整合性から,路面輝度0.7cd/m²とした。
- 総合均斉度
- 道路照明の質を表すもので,障害物の見え方に影響する総合均斉度は0.4以上とした。
- 平均照度換算係数
- 一般的な道路照明器具使用時の換算係数は,アスファルト路面:15ℓx/cd/m²であるが,今回の様に海面に対する漏光をルーバ等で制限するために,極端に配光制限を行う場合は適用出来ない。今回は,設置条件が似通っていることから「東京湾沿岸道路」の器具を使用するため,換算係数は同様の18ℓx/cd/m²の採用となった。
- 海上面への光漏れ制限
- 海上面への光漏れは,最大照度0.1ℓx以下と設定した。(図12,図13)
(2)照明設備
照明柱出幅2.5m時の場合,歩道部設置の有無により車道部位置に対する器具位置が異なる。このため,上り線歩道設置側は前方配光器具,下り線は車線中央付近の器具位置となることから直下配光器具とした。(図14)
3.おわりに
新北九州空港連絡橋は,歩道部が併設されており,本稿で紹介した施設を真近に見る事が出来,同様な施設検討時の参考になると思われる。
最後に本施設照明設備の完成にあたり,御指導,御協力を頂いた関係各位に深く御礼を申し上げる次第である。
- ※本設計は,平成17年度IWASAKI環境照明審査員特別賞を受賞。
この記事は弊社発行「IWASAKI技報」第15号掲載記事に基づいて作成しました。
(2006年10月10日入稿)
納入事例
テクニカルレポートに掲載されている内容は、原稿執筆時点の情報です。ご覧の時点では内容変更や取扱い中止などが行われている可能性があるため、あらかじめご了承ください。


