施設報告
新北九州空港連絡橋道路 - 海上橋の照明 -
国内営業事業部 九州技術設計センター
国内営業事業部 福岡営業所 第二営業課
キーワード
新北九州空港連絡橋,海上橋,光漏れ対策,高欄照明,道路照明
「レディオック ロード 低位置照明」のご案内
ポール設置が難しい箇所や高欄部、光害への配慮が必要な箇所に適したLED道路照明「レディオック ロード 低位置照明」の詳細は以下よりご覧いただけます。
- LEDioc ROAD(レディオック ロード) 低位置照明
3.照明設備概要 (続き)
3.1 アーチ橋部道路照明(高欄照明部)
アーチ橋部は,船舶の航路となっており,また本海上橋のシンボル的なアーチ橋である。このため照明手法の検討時,ポール照明方式と高欄照明方式の比較を行い,高欄照明方式が「アーチ橋に対する景観」「海面に対する光漏れ」の2点で優れており採用された。(図5,図6)
図5 高欄照明部昼景
図6 高欄照明部夜景
(1)光学設計条件
- 路面輝度
- 海上部のため,交通に影響を及ぼす光が周辺にほとんど存在しないが,1/2調光時を考慮し,路面輝度1.0cd/m²とした。
- 総合均斉度
- 道路照明の質を表すもので,障害物の見え方に影響する総合均斉度は0.4以上とした。
- 平均照度換算係数
- 一般的な道路照明器具使用時の換算係数は,アスファルト路面:15ℓx/cd/m²である。本橋の高欄照明は器具取付高さが1m程度の低い位置よりシャープな配光にて照明を行う。このため路面に対する光の入射角が一般道路照明器具と異なるため,平均路面換算係数も異なる。このことから,本連絡橋は同様な照明手法を用いている「関西新空港連絡橋」の換算係数25ℓx/cd/m²の採用となった。(図7)
(2)照明設備
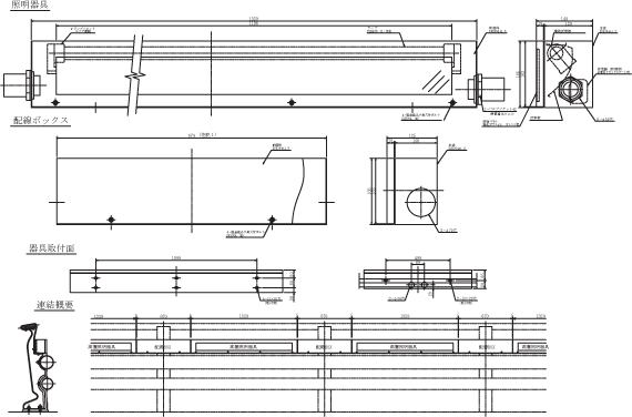
図8 高欄照明器具設置状況
高欄照明に使用する光源は蛍光ランプとし,シャープな配光を必要とする事からリフレクター型とし,前面ガラスには前後のポール照明光源の高圧ナトリウムと光色を合わせる目的で着色を施した。また,取付ピッチ2mに対し,照明器具間に同一形状の配線ボックスを設置する事で,連続的な景観とした。(図8,図9)
テクニカルレポートに掲載されている内容は、原稿執筆時点の情報です。ご覧の時点では内容変更や取扱い中止などが行われている可能性があるため、あらかじめご了承ください。

