施設報告
矢掛町総合運動公園の照明設備 - 多目的グラウンド,テニス・フットサルコート納入施設例 -
国内営業部 広島営業所 技術課
国内営業部 広島営業所
キーワード
矢掛町総合運動公園,全国初オールLED照明手法,高出力形LED投光器,省エネルギー
3.照明設備(つづき)
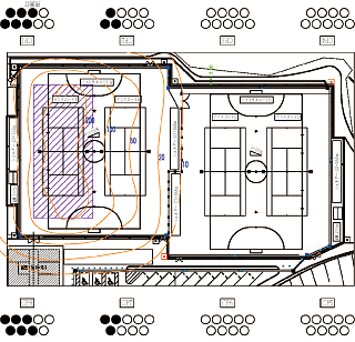
図8 照度分布図(サッカー点灯時)
- ※●点灯 ◯消灯
- ※曲線上の数値は、維持水平面照度を示す。(単位:ℓx)
凡例
|
 |
| 照明器具形式 |
LED中角形投光器 |
| 光源 |
LED40W×10 |
| 器具光束(ℓm) |
25700 |
| 保守率 |
0.67 |
| 鉄塔 |
灯高(m) |
設置台数 |
点灯台数 |
| NP1 |
20.0 |
12 |
10 |
| NP2 |
20.0 |
20 |
20 |
| NP3 |
20.0 |
12 |
10 |
| NP4 |
20.0 |
12 |
0 |
| NP5 |
20.0 |
12 |
10 |
| NP6 |
20.0 |
20 |
20 |
| NP7 |
20.0 |
12 |
10 |
| NP8 |
20.0 |
12 |
0 |
| 合計 |
112 |
80 |
照度及び照度計算範囲
| |
維持平均照度(ℓx) |
均斉度(min/ave) |
被照明面積(m²) |
| サッカー |
106 |
0.59 |
7140 |
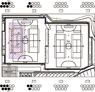
図9 照度分布図(ミニサッカーAコート点灯時)
- ※●点灯 ◯消灯
- ※曲線上の数値は、維持水平面照度を示す。(単位:ℓx)
凡例
|
 |
| 照明器具形式 |
LED中角形投光器 |
| 光源 |
LED40W×10 |
| 器具光束(ℓm) |
25700 |
| 保守率 |
0.67 |
| 鉄塔 |
灯高(m) |
設置台数 |
点灯台数 |
| NP1 |
20.0 |
12 |
0 |
| NP2 |
20.0 |
20 |
10 |
| NP3 |
20.0 |
12 |
10 |
| NP4 |
20.0 |
12 |
0 |
| NP5 |
20.0 |
12 |
10 |
| NP6 |
20.0 |
20 |
10 |
| NP7 |
20.0 |
12 |
0 |
| NP8 |
20.0 |
12 |
0 |
| 合計 |
112 |
40 |
照度及び照度計算範囲
| |
維持平均照度(ℓx) |
均斉度(min/ave) |
被照明面積(m²) |
| ミニサッカーA |
101 |
0.40 |
4000 |
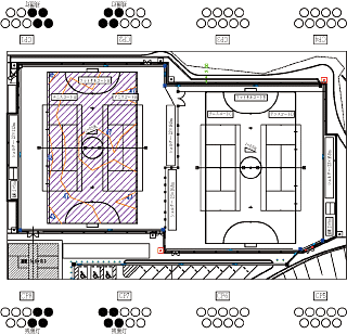
図10 照度分布図(ソフトボールAコート点灯時)
- ※●点灯 ◯消灯
- ※曲線上の数値は、維持水平面照度を示す。(単位:ℓx)
凡例
|
 |
| 照明器具形式 |
LED中角形投光器 |
| 光源 |
LED40W×10 |
| 器具光束(ℓm) |
25700 |
| 保守率 |
0.67 |
| 鉄塔 |
灯高(m) |
設置台数 |
点灯台数 |
| NP1 |
20.0 |
12 |
0 |
| NP2 |
20.0 |
20 |
0 |
| NP3 |
20.0 |
12 |
9 |
| NP4 |
20.0 |
12 |
12 |
| NP5 |
20.0 |
12 |
12 |
| NP6 |
20.0 |
20 |
10 |
| NP7 |
20.0 |
12 |
0 |
| NP8 |
20.0 |
12 |
0 |
| 合計 |
112 |
43 |
照度及び照度計算範囲
| |
維持平均照度(ℓx) |
均斉度(min/ave) |
被照明面積(m²) |
| ソフトA |
内野 |
150 |
0.50 |
900 |
| 外野 |
76 |
0.12 |
4360 |
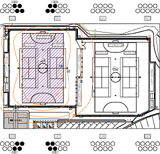
図11 GR分布図(サッカー点灯時)
- ※●点灯 ◯消灯
- ※曲線上の数値は、各ポイントにおける最大GR値を示す。
凡例
|
 |
| 照明器具形式 |
LED中角形投光器 |
| 光源 |
LED40W×10 |
| 器具光束(ℓm) |
25700 |
| 保守率 |
1.00 |
| 鉄塔 |
灯高(m) |
設置台数 |
点灯台数 |
| NP1 |
20.0 |
12 |
10 |
| NP2 |
20.0 |
20 |
20 |
| NP3 |
20.0 |
12 |
10 |
| NP4 |
20.0 |
12 |
0 |
| NP5 |
20.0 |
12 |
10 |
| NP6 |
20.0 |
20 |
20 |
| NP7 |
20.0 |
12 |
10 |
| NP8 |
20.0 |
12 |
0 |
| 合計 |
112 |
80 |
計算条件及び計算結果
| 区分 |
サッカー(レクリエーション) |
| 計算値 |
基準値 |
| GR最大値 |
52.9 |
55以下 |
| 計算面積(m²) |
9600 |
| 初期平均照度(ℓx) |
144 |
| フィールド面反射率(%) |
15 |
| 観測者位置/高さ(m) |
1.5 |
参考値(JIS Z9127:2011)
| GR |
グレアの程度 |
| 90 |
耐えられない |
| 70 |
邪魔になる |
| 50 |
許容できる限界 |
| 30 |
あまり気にならない |
| 10 |
気にならない |
図12 照度分布図(テニスAコート点灯時)
- ※●点灯 ◯消灯
- ※曲線上の数値は、維持水平面照度を示す。(単位:ℓx)
凡例
|
 |
 |
| 照明器具形式 |
高出力型LED投光器(中角) |
高出力型LED投光器(広角) |
| 光源 |
LED40W×10 |
LED40W×10 |
| 器具光束(ℓm) |
25700 |
26000 |
| 保守率 |
0.67 |
0.67 |
| 灯高(m) |
13.5 |
13.5 |
| 点灯台数 |
14 |
14 |
照度及び照度計算範囲
| |
維持平均照度(ℓx) |
均斉度(min/ave) |
被照明面積(m²) |
| テニスコートA |
203 |
0.56 |
576 |
| テニスコートB |
- |
- |
- |
| フットサルコートA |
- |
- |
- |
図13 照度分布図(フットサルAコート点灯時)
- ※●点灯 ◯消灯
- ※曲線上の数値は、維持水平面照度を示す。(単位:ℓx)
凡例
|
 |
 |
| 照明器具形式 |
高出力型LED投光器(中角) |
高出力型LED投光器(広角) |
| 光源 |
LED40W×10 |
LED40W×10 |
| 器具光束(ℓm) |
25700 |
26000 |
| 保守率 |
0.67 |
0.67 |
| 灯高(m) |
13.5 |
13.5 |
| 点灯台数 |
12 |
4 |
照度及び照度計算範囲
| |
維持平均照度(ℓx) |
均斉度(min/ave) |
被照明面積(m²) |
| テニスコートA |
- |
- |
- |
| テニスコートB |
- |
- |
- |
| フットサルコートA |
118 |
0.51 |
1050 |
図14 GR分布図(テニスAコート点灯時)
- ※●点灯 ◯消灯
- ※曲線上の数値は、各ポイントにおける最大GR値を示す。
凡例
| |
 |
 |
| 照明器具形式 |
高出力型LED投光器(中角) |
高出力型LED投光器(広角) |
| 光源 |
LED40W×10 |
LED40W×10 |
| 器具光束(ℓm) |
25700 |
26000 |
| 保守率 |
1.00 |
1.00 |
| 灯高(m) |
13.5 |
13.5 |
| 点灯台数 |
14 |
4 |
計算条件及び計算結果
| 区分 |
テニス(レクリエーション) |
| 計算値 |
基準値 |
| GR最大値 |
51.2 |
55以下 |
| 計算面積(m²) |
576 |
| 初期平均照度(ℓx) |
280 |
| フィールド面反射率(%) |
15 |
| 観測者位置/高さ(m) |
1.5 |
参考値(JIS Z9127:2011)
| GR |
グレアの程度 |
| 90 |
耐えられない |
| 70 |
邪魔になる |
| 50 |
許容できる限界 |
| 30 |
あまり気にならない |
| 10 |
気にならない |
図15 GR分布図(フットサルAコート点灯時)
- ※●点灯 ◯消灯
- ※曲線上の数値は、各ポイントにおける最大GR値を示す。
凡例
|
 |
 |
| 照明器具形式 |
高出力型LED投光器(中角) |
高出力型LED投光器(広角) |
| 光源 |
LED40W×10 |
LED40W×10 |
| 器具光束(ℓm) |
25700 |
26000 |
| 保守率 |
1.00 |
1.00 |
| 灯高(m) |
13.5 |
13.5 |
| 点灯台数 |
12 |
4 |
計算条件及び計算結果
| 区分 |
テニス(レクリエーション) |
| 計算値 |
基準値 |
| GR最大値 |
49.8 |
55以下 |
| 計算面積(m²) |
1050 |
| 初期平均照度(ℓx) |
160 |
| フィールド面反射率(%) |
15 |
| 観測者位置/高さ(m) |
1.5 |
参考値(JIS Z9127:2011)
| GR |
グレアの程度 |
| 90 |
耐えられない |
| 70 |
邪魔になる |
| 50 |
許容できる限界 |
| 30 |
あまり気にならない |
| 10 |
気にならない |
4.おわりに
LEDは環境に優しい光源として注目されており,本件においては積極的にLED照明を導入していただき,総合運動施設を全てLED照明で照らす手法は全国でも初の試みとなった。
LED光源の発効効率は日進月歩であり,HIDランプの中でも高効率の特徴をもつ高圧ナトリウムランプやメタルハライドランプを越える日も近いであろう。
今後もますますLED照明の需要が高まり,当社がそれに貢献できることを願う。
最後に,本照明設備の完成にあたり,御尽力いただいた関係各位に感謝して結びの言葉とする。
※本施設は,照明学会「平成24年照明普及賞」及び環境省「第4回 省エネ・照明デザインアワード(平成25年度) 優秀事例」を受賞。
この記事は弊社発行「IWASAKI技報」第28号掲載記事に基づいて作成しました。
(2013年4月25日入稿)
テクニカルレポートに掲載されている内容は、原稿執筆時点の情報です。ご覧の時点では内容変更や取扱い中止などが行われている可能性があるため、あらかじめご了承ください。