施設報告
青森駅前公園整備工事
国内営業部 郡山営業所
キーワード
青森駅前公園,照明演出,ツインアーク
1.はじめに
青森市の青森駅前公園は,青森駅前広場としての県都の表玄関であり,市内の最大繁華街である中心商店街の一角を形成しているため,地元住民のみならず青森市を訪れる多くの人々を対象とした,憩いの場の確保と快適な生活環境の場を創出し,安らぎと潤いの場を提供するために,昭和58年度から平成18年度にかけて整備された。(総面積:約0.6ha)
公園整備と併せて照明設備も新設され,昼間とは異なる環境を形成し,人々の目を楽しませている。(平成18年12月竣工,平成19年4月一般開放)
2.照明設計
2.1 設計コンセプト
本施設の照明計画にあたっては,以下のようなコンセプトにて計画を行った。
- 青森県の歴史遺産「三内丸山遺跡」の堀建柱をモチーフとした,照明柱デザインを検討すること。
- 夏季は清涼感,冬季は温かみのある色温度を有する光源を選定すること。
- 照明柱は,乱立による煩わしさを避けるために公園周辺部へ配置すること。
2.2 設計照度
本施設の設計照度は,維持費軽減等の経済性を考慮し,JIS-9110-1979照度基準(公園・主な場所)に規定された必要最小限の5ℓxに設定した。
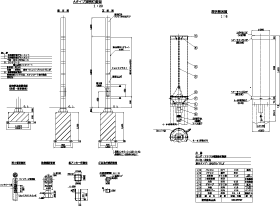
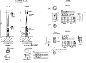
2.3 照度分布図および照明設備一覧表
| 器具 | Aタイプ特注照明柱 | Bタイプ特注照明柱 | Dタイプ照明灯 (アプローチライト) |
Eタイプ特注照明柱 (樹木ライトアップ用) |
||
|---|---|---|---|---|---|---|
| ランプ | HNH20/11LF | HNH20/11LF | HNH8/5F | FDL27W | HF400X | FDL27W |
| 灯高 | 4.5m | 4.5m | 1.0m | 2.1m | ||
| 数量 | 12基 | 6基 | 13基 | 7基 | ||
| 器具 | Fタイプ 地中埋込照明灯 |
G・Kタイプ 地中埋込照明灯 |
Hタイプ 壁泉用小型投光器 |
Jタイプ 縁台用フットライト |
|---|---|---|---|---|
| ランプ | FDL13W | MTD150CE | MT150FCE-W/S | IL36W |
| 灯高 | - | - | - | - |
| 数量 | 20台 | 11台 | 6台 | 33台 |
3.設備概要
3.1 設備の全体概要
開放感のある空間に「青森」をイメージできるシンボルツリー,遊具,縁台,テラスを備えたパーゴラ,清涼感と視覚的にも聴覚的にも癒し効果の得られる壁泉等を適切に配置し,交通量の多い駅前地区でありながらも日頃の繁忙さを一時忘れさせてくれるような公園である。
3.2 照明設備の概要
前述の設計コンセプトと設計照度を考慮し,メインの照明柱は灯高H=4.5mの遠心成形コンクリートの石材風磨き仕上げとし,「たいまつ」を模した円筒形乳白アクリルグローブを組み合わせたAタイプとグレアを抑えたスリット照明とフットライトを組み合わせたBタイプを採用し,「三内丸山遺跡」の堀建柱をイメージさせる配置とした。
また,各シンボルツリーは水銀ランプ400Wにて効果的にライトアップすることにより,夜間における存在感を強調し,壁泉照明には高演色のセラミックメタルハライドランプ150Wを採用することにより,壁泉のデザインおよび質感を忠実に再現した。
図2~図5に,Aタイプ及びBタイプの照明柱設置状況の写真と照明柱の外形・構造を示す。
また,図6にシンボルツリーライトアップ状況の写真を,図7には壁泉照明点灯状況の写真を示す。
図2 Aタイプ照明柱設置状況
図4 Bタイプ照明柱設置状況
図6 シンボルツリーのライトアップ状況
図7 壁泉照明点灯状況
3.3 照明効果
照明設備設置後に,現地にて回路毎の点灯状況および計画通りの効果が得られていることかどうかを確認し,現地での目線だけでなく近隣ビルの屋上からも公園設備と調和の取れていることを確認した。
図8,図9に高い視点からの夏期点灯パターンと冬季点灯パターンの写真を示す。
図8 夏期点灯パターン
図9 冬季点灯パターン
4.おわりに
平成22年12月を目標に東北新幹線・新青森駅開業を万全の体制で迎えるため官民一体となって機運が盛り上がってきている。本公園照明設備が多くの市民や青森を訪れる観光客の目に止まり,束の間の休憩や癒しを体感してもらいたいと切望すると共に,県都「青森市」の更なる活性化につながることを期待する。
最後に本照明設備の完成にあたり,御指導,御協力頂いた関係各位に感謝申し上げると共に,心より御礼申し上げる。
この記事は弊社発行「IWASAKI技報」第20号掲載記事に基づいて作成しました。
(2009年2月9日入稿)
納入事例
テクニカルレポートに掲載されている内容は、原稿執筆時点の情報です。ご覧の時点では内容変更や取扱い中止などが行われている可能性があるため、あらかじめご了承ください。


