施設報告
フットサルドーム・ピヴォックス広島の照明設備 - 全面プリズムグローブ形照明器具 -
営業本部 西日本営業部 広島営業所 技術課
キーワード
ピヴォックス広島,ドーム型フットサルコート,全面プリズムグローブ形照明
1.はじめに
フットサルドーム・ピヴォックス広島は,広島県南区元宇品町に位置する,天候に左右されずいつでも利用できるドーム型フットサルコートである(平成18年12月完成)。屋根は光触媒テントを使用し,十分な明るさを得ながらも紫外線を98%以上カットしている(図1,図2)。サッカーの国際大会会場や,欧州の名門クラブの練習場などでも使用されるロングパイルの人工芝「モンドターフ」を使用しており衝撃吸収にも優れた高品質フィールドである。本稿では同設備の照明手法や設備概要について紹介する(図3)。
図1 施設外観(昼間)
図2 施設内設置状況(消灯時)
図3 施設外観(夜間)
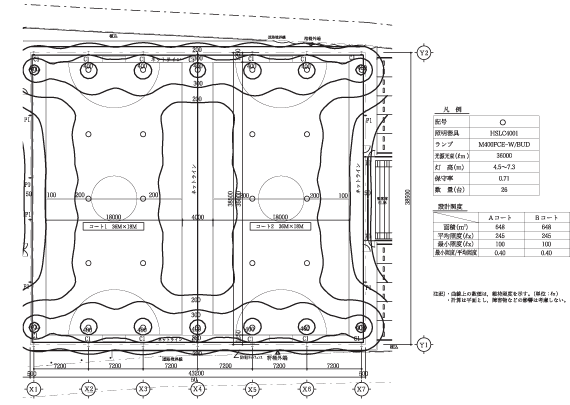
2.照明設備の概要
2.1 設計照度
ピヴォックス広島は,気軽にスポーツを楽しめる場であることを目的としているが,フットサルはサッカーに比べボールやコートが小さく,人やボールの動きが早いことから屋外サッカー場一般競技レベルの200ℓxとした。(JIS Z 9121-1997)
2.2 照明器具
施設は天井が比較的低い(灯高4.5~7.3m)ため,スポーツ施設で多く採用されている投光器を用いた照明では,競技者がグレアを感じやすい。本施設においては全面プリズムグローブ形照明器具バーサビーム™(HSLC4001)を採用することでグレアを軽減した(図4)。バーサビーム™はGE社の特許技術であるプリズム構造により配光を制御したプリズム付きグローブでランプを覆うことによりランプからの直射光がなくなり不快グレアを軽減している。
図4 器具取付状況
2.3 ランプ
本施設は,天井はあるが壁面の無い半屋外であることから,誘虫性の低いランプが望まれる。また,ユニホームや芝の色彩を自然な色に見せられることや省エネルギー及び保守性の面から効率が良く光束維持率の高いランプが適している。よって本施設のランプには,ランプ効率・光束維持率が高く演色性の優れたセラミック発光管形メタルハライドランプ(M400FCE-W/BUD)を使用した。(図5,図6)
図5 施設内設置状況(点灯時)
図6 施設外観(夜間)
3.おわりに
屋内スポーツ施設の照明は,取付高さが高く取れない場合も多く,配置も梁の位置などにより制約される。よって,照明器具を選定するにあたっては競技の妨げとなるようなグレアが生じないよう考慮しなくてはならない。ピヴォックス広島ではバーサビーム™を使用することでグレアを軽減することができた。今後も屋内スポーツ施設の設計に活用していきたいと思う。
最後に本照明設備の完成にあたり,ご指導ご協力いただきました関係各位に深く御礼を申し上げる次第である。
この記事は弊社発行「IWASAKI技報」第17号掲載記事に基づいて作成しました。
(2007年10月12日入稿)
納入事例
テクニカルレポートに掲載されている内容は、原稿執筆時点の情報です。ご覧の時点では内容変更や取扱い中止などが行われている可能性があるため、あらかじめご了承ください。
