施設報告
九州新幹線(鹿児島)新玉名駅
国内営業部 東日本技術設計センター
国内営業部 東京広域営業所 民需営業課
キーワード
ライトアップ,照明演出,投光器,メタルハライドランプ,九州新幹線,新玉名駅
1.はじめに
2011年3月に九州新幹線鹿児島ルートが全線開通した。鹿児島中央駅から博多駅までだけでなく,山陽新幹線に乗り入れ新大阪駅―鹿児島中央駅を最短3時間45分で結ぶ。
本施設は,熊本県北部の新たな玄関口として熊本県玉名市に位置する。在来線の駅とは離れ,新幹線の単独駅であるが,同市は歴史的遺産に恵まれ,また温泉街としても有名である。今後は「福岡への通勤,通学が可能になり定住人口の増加も見込める」と地元からも期待されている。
2.照明設計
2.1 施設概要
図1 駅舎外観
駅周辺の開発のコンセプトが「森」であることから,九州の自然と地域の特性を生かしたデザインを目指し,歴史と文化に基づいた,やすらぎ・ぬくもり・あたたかみのある,近代的な駅舎ではない「森の駅」にして欲しいという要望が,市や県,市民,有識者,関連団体による検討会によってまとめられた。それを受けて,中央部はガラス張りの壁面に木材で覆った鉄骨の柱が規則正しく並び,木立の間から光が降り注ぐ森を演出。外観は木の温かみが感じられるようにし,出入口に石橋や蔵,上部はすだれ状の壁とし,地域の歴史遺産である蔵をイメージしている(図1)。
- 所在地
- 熊本県玉名市
- 駅位置
- 高架下
- 駅面積
- 1,800m²
- ホーム長さ
- 220m
- ホーム形式
- 相対式(2面2線)
2.2 設計照度
設計照度はJIS規格(駅舎:A級駅)に準拠した照度設計とした(表1)。
光源には,平均演色評価数Ra80以上の高演色ランプを採用し,昼光センサーを使用する事で,より効率的な照明環境を実現している。
また,本施設の性格上,極力グレアを抑えた照明とし,アクセント照明のブラケットもグローブを乳白にするなど考慮している。主な使用照明器具を表2に示す。
| 維持床面平均照度(単位:ℓx) | |
|---|---|
| コンコース全体 | 500 |
| 改集札口・出札口 | 1000 |
| 通路 | 200 |
| プラットホーム | 200 |
| プラットホーム | FK11214N-RK26-0011ステーションホーム照明器具FLR110W×1 | 179 |
|---|---|---|
| HBL1735BHE/5H7010ブラケットコンパクト蛍光灯42W×1 | 34 | |
| HCF1571BHE/W投光器セラミックメタルハライドランプ150W×1 | 16 | |
| 昼光センサー制御器 | 1 | |
| 昼光センサー受光器 | 1 | |
| コンコース | FHDW42251ERH9ダウンライトコンパクト蛍光灯42W×2 | 66 |
| HDW30121/5H7159ダウンライトセラミックメタルハライドランプ150W×1 | 55 | |
| FHDW42W01ERFH9ダウンライトコンパクト蛍光灯42W×1 | 34 | |
| HCF1571BHE/W投光器セラミックメタルハライドランプ150W×1 | 38 | |
| 昼光センサー制御器 | 1 | |
| 昼光センサー受光器 | 1 | |
| ファサード | HCF1521BHE/W投光器セラミックメタルハライドランプ150W×1 | 12 |
| HCF0375BHE/W投光器セラミックメタルハライドランプ35W×1 | 12 |
3.照明設備の概要
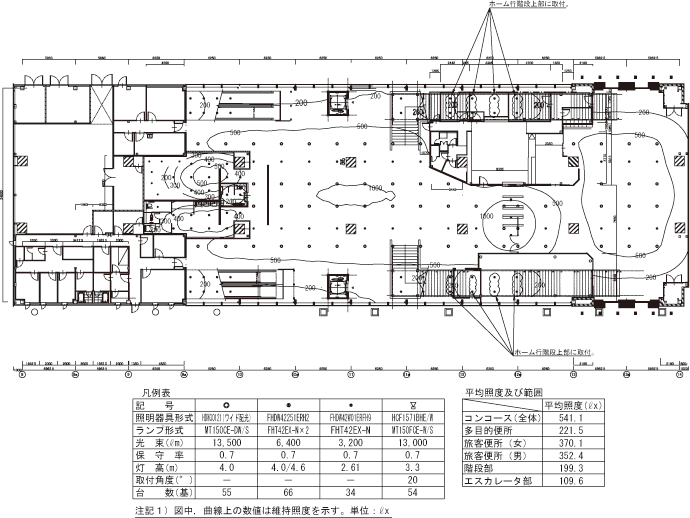
3.1 コンコース照明
積極的にセラミックメタルハライドランプを使用する事で省エネを図りつつ,瞬時点灯が出来るようコンパクト蛍光灯ダウンライトをその間に配灯することで安全を確保している。ベース照明をダウンライトにすることで,器具を目立たなくし,白色系の光色が全体をコンコース全体をすっきりとしたさわやかなイメージを演出している。
大きなガラス面を要する壁面には上部にセラルクス®150W電子安定器一体形投光器アーバンアクト®βを使用し,床面の照度を確保するとともに,視界に器具が入らず開放感を効果的に演出した(図2,図3)。コンコース全体で床面照度500ℓx,改札口付近で1000ℓxを確保している。(図4)
図2 コンコース照明
図3 コンコース照明
図4 コンコースの照度分布図
3.2 プラットホーム照明
図5 プラットホーム照明
プラットホームのベース照明は,蛍光灯110W×1灯用直付灯をライン上に設置(H=3.5m)し,維持照度200ℓx以上確保した。壁面にコンパクト蛍光灯42W ブラケット灯を配灯し,暖色系の光源にすることで,アクセントとしている。(図5)ホーム中央部には,コンコース照明と同じセラルクス150W 電子安定器一体形投光器アーバンアクトβを使用し,必要な200ℓxを確保している。(図6,図7)
図6 プラットホームの照度分布図
図7 プラットホームの照度分布図
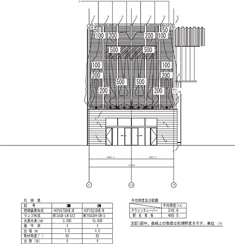
3.3 外壁面ライトアップ照明
本施設の顔となる正面玄関のファサードには,テラコッタルーバーが使われており,駅名の看板もその上部にある。ルーバー全体をセラルクス150W電子安定器一体形投光器アーバンアクトβ6台と,セラルクスT 35W電子安定器一体形投光器アーバンアクトβポケット6台でライトアップを行っている。素材が引き立つよう暖色系の光源を使用し,暖かなイメージを醸し出し,周辺地域のシンボル的役割を果たしている(図8,図9)。
図8 駅舎外壁面ライトアップ照明
図9 駅舎外壁面照明器具配置図
4.おわりに
今回新玉名駅という熊本県北の玄関口となる場所の整備に,少しでも貢献できたことは大きな喜びである。福岡まで30分という通勤圏内になり,居住地とする人も増えるであろう。駅には観光センターも開設し,今後,道路網も整備され,ますます発展することを期待する。
最後に,本施設の照明設備の完成にあたり,ご指導,ご協力いただいた皆さまに感謝し,御礼を申し上げる。
- ※注:本施設は,2010年度IWASAKI環境照明賞を受賞。
この記事は弊社発行「IWASAKI技報」第24号掲載記事に基づいて作成しました。
(2011年5月26日入稿)
納入事例
テクニカルレポートに掲載されている内容は、原稿執筆時点の情報です。ご覧の時点では内容変更や取扱い中止などが行われている可能性があるため、あらかじめご了承ください。