施設報告
滝野川市場通り商店街 街路灯 - LED街路灯でeco -
営業技術部 LCS
国内営業部 東京広域営業所 民需営業課
キーワード
LED街路灯,商店街照明,省エネルギー,CO₂削減,LED照明補助金
「レディオック ストリート」のご案内
商店街など街の安全・安心を助ける街路灯として機能するLED防犯灯「レディオック ストリート」の詳細は以下よりご覧いただけます。
- LED防犯灯
1.はじめに
滝野川市場通り商店街は,JR埼京線板橋駅東口や都営三田線西巣鴨駅から約200mほど歩いたところにある,全長約280mの商店街である。戦後,通り沿いに出店した小さな「野菜市場」を核として生鮮品店を中心に,徐々に商店が集積して形成された商店街で,食品,生活雑貨を中心に安売り市場として有名になり,昭和30年代にはアメ横的な賑わいを呈し,現在も市場的活気のあるイメージを残している。
滝野川市場通り商店街のある東京都北区は,「商店街街路灯LED化推進事業」として,商店街街路灯のLED化について全国でもトップレベルの支援を行っており,東京都と連携し,補助率9/10による支援を実施し,3ヶ年で30商店街のLED化推進が計画されている(東京都北区平成21年度予算案の概要より)。本件は,この商店街街路灯LED化推進事業の一つで,老朽化した街路灯に変わって,省エネ・CO₂削減に貢献する照明としてLED街路灯を設置したものである。
2.照明設計
従来のグローブタイプの街路灯にこだわらずに,レンズ形LEDを使用したLED照明器具3灯用とし,コンパクトできらめき感のあるLEDらしい街路灯で,商店街の賑わい感や従来の明るさを確保し,最先端光源LEDを使用する新しいイメージの街路灯,地球温暖化対策・環境負荷低減に貢献している商店街として,新鮮な印象を与える照明を目指した。
路面照度は改修前とほぼ同等の明るさを確保し,改修前の街路灯が,水銀ランプ80W×2灯と高圧ナトリウムランプ70W×1灯の3灯用街路灯(図1)で,1基あたりの消費電力が271Wであるのに対し,改修後はレンズ形LED 5W×3個のLED照明器具3灯用(図2)で,1基あたり54.6Wの消費電力と,約80%の省エネを実現している。
また今回,街路灯の改修と同時に,商店街入口部にあるアーチに設置されている投光器の改修も実施し,セルフバラスト水銀ランプ300Wの投光器をLED投光器に改修する事で,約89%の省エネを実現している。(図3,4)
図1 改修前街路灯
図2 改修後街路灯
図3 商店街アーチ
図4 アーチ投光器
3.照明設備
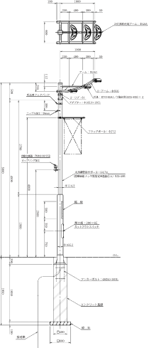
街路灯設置箇所は改修前と同じ位置で,街路灯30基,LED照明器具90台を設置した。アーチ部分にはLED投光器16台を設置している。(図5)
照明器具には,LED防犯灯として開発されたLEDioc Street(E7004SA1/2)を使用し,特徴的なデザインが新鮮な印象を与えている。(図6)
街路灯には,スピーカーや交通標識,商店街サイン看板などが取付けられ,商店街としての活気や賑わいを高め,安心,安全を向上している。(図7,8)
照明効果として,商店街のような華やかさの必要な通りには,今回のようなLED光源のきらめきのある器具は効果的であると考える。また,従来の水銀ランプや高圧ナトリウムランプとは違う,すっきりとしたクリアな光が,フレッシュな印象の活気のある商店街となっている。
今回,当社の光環境評価システムQUAPIX™(クオピクス™)を用いて,改修前と改修後の商店街照明の評価を行った。クオピクスの測定では,路面の明るさや輝度は改修前とほぼ同等であった。鉛直面については,明るさ・輝度ともに低く抑えられるので,鉛直面の明るさを求められる場合には,器具選定や街路灯デザインにおいて検討が必要となるが,2階部分が住居で窓などがある場合には,光害抑制としての効果を期待できる。(図9)
図7 サイン看板付き街路灯
図8 スピーカー・交通標識付き街路灯
図9 光環境評価システムQUAPIX™(クオピクス™)測定画像
4.おわりに
各分野で地球温暖化対策,環境負荷低減は大きな話題となっている中,商店街街路灯でもLED推進事業は各地で行われている。実際にLED化された商店街も数多く,今後も増え続ける事が必須である。指向性の強いLEDは,空間照度を求めることの多い商店街には,難しい点もあるが,LEDの特長を活かした新しい照明空間で,省エネを実現しながら魅力ある商店街照明を提案していきたいと考える。
最後に,滝野川市場通り商店街のLED照明を実現するにあたり,ご協力いただいた皆様に感謝の意を申し上げる次第である。
この記事は弊社発行「IWASAKI技報」第22号掲載記事に基づいて作成しました。
(2010年5月14日入稿)
納入事例
テクニカルレポートに掲載されている内容は、原稿執筆時点の情報です。ご覧の時点では内容変更や取扱い中止などが行われている可能性があるため、あらかじめご了承ください。
