施設報告
大洋薬品オーシャンアリーナの照明設備
国内営業部 名古屋営業所 技術課
キーワード
フットサル専用アリーナ,アクロスター,プロフットサル,大洋薬品オーシャンアリーナ
1.はじめに
大洋薬品オーシャンアリーナは日本初のプロフットサルクラブ「名古屋オーシャンズ」のホームグラウンドとして平成20年6月にオープンした(愛知県名古屋市港区)。
アジア初のフットサル専用アリーナであり,外観はコロシアムをイメージしメインアリーナには国際規格である20m×40mのフットサルコートが1面配置されている。観客席はコートに近接して配置されているため,迫力のあるプレーを間近に感じながら観戦することが出来る。その他にもサブアリーナ,プレスルーム,レストランやオフィシャルショップなども併設され,選手にも観客にも魅力的な設備が整っている。
本稿では同設備の照明手法や設備概要について紹介する。
2.メインアリーナの照明手法
図1 メインアリーナ
メインアリーナ照明の検討にあたっては下記の事項に留意して照明の手法を決定した(図1)。
- 競技面を効率的に且つ均斉度良く照明する事
- 選手・観客へのグレアを軽減させる事
- 選手のユニフォームの色を判別しやすく,より鮮明に見えるようにする事
- 観客及びTV放映時の見え方を良くするため,鉛直面照度(1000ℓx)を確保する事
上記の事項を満足させるために,下記に示す照明手法を用いることとした。
2.1 高効率形投光器の採用
高効率形投光器(アクロスター™)を使用することにより,設置台数を削減しながら必要照度を効率よく且つ均斉度良く確保することとした(図2)。
2.2 サイド配置の採用
メインアリーナはTV撮影も行われるため,鉛直面照度の確保が重要な要素となっていた。したがって効率よく鉛直面照度を確保するためにサイド配置の投光照明方式を採用した。
2.3 メタルハライドランプの採用
選手のユニフォームの色の見え方やTV撮影を考慮してメタルハライドランプを使用することとし,ランプ効率・ランプ寿命の優れた高効率形メタルハライドランプ(MT1000B/BH-M)を採用した。
3.サブアリーナの照明手法
図3 サブアリーナ
サブアリーナ照明の検討にあたっては下記の事項に留意して照明の手法を決定した(図3)。
- 競技面を効率的にかつ均斉度良く照明する事
- 選手・観客へのグレアを軽減させる事
- 選手のユニフォームの色を判別しやすく,より鮮明に見えるようにする事
上記の事項を満足させるために,下記に示す照明手法を用いることとした。
3.1 高効率形高天井用照明器具の採用
高効率形高天井用照明器具を使用することにより,設置台数を削減しながら必要照度を効率よく且つ均斉度良く確保することとした。
3.2 天井分散配置の採用
サブアリーナはTV撮影が無く,また必要照度も低い設定のため高天井用照明器具による天井分散配置を採用した。
3.3 セラミックメタルハライドランプの採用
選手のユニフォームの色の見え方を考慮してセラミックメタルハライドランプ(M360CELSH-W/BUD)を使用することとした。サブアリーナは設計照度が低いため,セラミックメタルハライドランプの採用が可能であった。
4.設計照度
フットサルコートに関する照度基準は明確なものが無いため,同様競技であるサッカーの基準をベースとし,照度設定にあたってはJIS Z 9121-1997「屋外陸上競技場,屋外サッカー場及びラグビー場の照度基準」をもとに行った。
メインアリーナは,TV撮影が行われることをメインの点灯パターンとした。またTV撮影が行われない場合や,練習時の対応として照明器具を間引き点灯させることで照度の調整を行うこととした。
サブアリーナは,主となる使用方法が練習時の使用と考えられるため「一般競技レベル」での照度設定とした。メイン・サブアリーナの設計照度を表1に示す。
| 施設 | 運動競技区分 | 水平面照度(ℓx) | 鉛直面照度(ℓx) |
|---|---|---|---|
| メインアリーナ | TV撮影 | 1000 | 1000 |
| 公式競技 | 500 | ― | |
| 一般競技 | 200 | ― | |
| サブアリーナ | 一般競技 | 200 | ― |
5.照明器具
メインアリーナは,サイド配置による投光照明となっており,競技面より高さ約13.5mのキャットウォーク上にアクロスター中角配光形が44台設置されている。
サブアリーナは,天井分散配置による高天井照明となっており,灯高約4.7mの天井面に高天井用照明器具が21台設置されている。
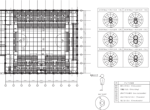
6.グレアの検討
メインアリーナにおいては投光器の照射角度を決定するにあたり,必要照度の確保はもちろんのことプレーヤーに対するグレアの検討も行った。
コート内での各ポイントにおいてGR評価を行い,GRの評価値を50になるように投光器の照射角度を決定した(図4)。
7.フットサルの照度設定について
前述したようにフットサルにおいては明確な照度基準がJIS等で設定されていないのが現状である。本施設においては同様競技であるサッカーの基準をベースに照度設定を行った。
一般にフットサルコートというと,余暇のスポーツとして利用されているイメージがある。それにともない照度設定時の運動競技区分を「レクリエーション」に選択しがちであるが,実際のフットサルコートの運営形態としては頻繁に小規模の大会を開催していることが多い。つまり「一般競技」の運動競技区分の利用をしていることになる。
したがって,フットサルコートの照明設計を行う際にはそれらについても十分な配慮を行う必要がある。
上記を踏まえて,設計照度の設定にあたっては「一般競技 200ℓx以上」を選定することが良いのではないかと考える。
8.おわりに
本施設が今後の日本のフットサルの振興,向上に貢献出来き,また同様な施設が全国各地で増え,それに当社が貢献できることを願うとともに,御指導・御協力を頂いた関係者各位に感謝してむすびの言葉とする。
- ※本設計は,2009年IWASAKI環境照明賞最優秀環境照明賞を受賞。
この記事は弊社発行「IWASAKI技報」第21号掲載記事に基づいて作成しました。
(2009年11月11日入稿)
納入事例
テクニカルレポートに掲載されている内容は、原稿執筆時点の情報です。ご覧の時点では内容変更や取扱い中止などが行われている可能性があるため、あらかじめご了承ください。

