施設報告
豊洲埠頭開発 照明設備工事
国内営業事業部 営業技術部 LCS
キーワード
豊洲埠頭,再開発,道路,歩道,交差点,デザイン,南雲勝志
「LEDポールライト」のご案内
さまざまな形状やカラーをラインアップし、街の景観に調和する岩崎電気の「LEDポールライト」の詳細は以下よりご覧いただけます。
- LEDポールライト
「レディオック ロード 低位置照明」のご案内
ポール設置が難しい箇所や高欄部、光害への配慮が必要な箇所に適したLED道路照明「レディオック ロード 低位置照明」の詳細は以下よりご覧いただけます。
- LEDioc ROAD(レディオック ロード) 低位置照明
3.照明設備の概要
3.1 車道照明
「ゆりかもめ」の豊洲駅から市場前駅,そこから南へ下り有明北橋方向の道路に沿って設置された車道照明柱は,昼間の景観にも留意し,すっきりとしたデザインとなっている。高機能道路照明パズー™,クロス・パズー™の反射板を用いて基準照度の確保を行ない,FECセラルクスエース™(セラミックメタルハライドランプ)を光源とする高効率の光で安全・快適に道路を照らし出している。(図4,図5)
デザイナーの南雲氏からは,なるべく器具をコンパクトにし,器具とアームの取付ボルトを見せない仕上げとの要望があった。照明器具は反射板の縁をカットして極力小さくし,取付ビスは皿ビスとすることで対応した。
図4 車道全景
図5 車道用照明柱
3.2 歩道照明
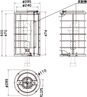
歩道照明は安全や安心に配慮し,10ルクスの照度確保が必要であった。南雲氏のデザインフォルムを崩すこと無く,沿道に10m近く育つ樹木の影響など将来を考慮し,広幅員(8.5m)の歩道部で10ルクスの明るさを確保することは非常に苦労した。モックアップによる照明実験(図6)やCGを用いた照明設計を繰り返し行ない検証を重ねることで,照明器具のグローブ内に歩道側のみ効率を上げる片反射板(図7,図8)を内蔵することにより,歩道部の必要照度を満足することができた。
光源の選定は,歩行者の見え方や効率などを考慮し,暖色系色温度3000KのFECセラルクスエース™150Wを採用している(図9,図10,図11,図12)。歩車道の照明設備数量を表1に示す。
図6 照明実験
図8 歩道照明器具内部
図7 歩道照明器具図面
図9 歩道用照明柱(1灯用)
図10 歩道用照明柱(2灯用)
図11 歩道用照明器具
図12 歩道全景
| 器具形式 | ランプ形式 | 数量 |
|---|---|---|
| 車道用照明器具(H=10m) | 150W FECセラルクスエース(4100K) | 16 |
| 220W FECセラルクスエース(4100K) | 48 | |
| 270W FECセラルクスエース(4100K) | 14 | |
| 歩道用照明器具(H=5m) | 150W FECセラルクスエース(3000K) | 116 |
3.3 低位置高欄照明
晴海大橋と同時期に開通(平成18年3月)した有明北橋は,豊洲埠頭と有明地区を結ぶ橋である。橋にはゆったりとした幅の歩道(4m)が計画されていて,歩道照明には景観の配慮と照度の確保の両立を目指した低位置高欄照明が設置された。夜間も足元を安全に照らすライン照明のもと,橋からの夜景を楽しみながら快適に橋を渡ることができる(図13,図14)。橋梁高欄の照明設備数量を表2に示す。
図13 低位置高欄用照明器具
図14 高欄照明全景
| 器具形式 | ランプ形式 | 数量 |
|---|---|---|
| 低位置高欄照明 | 32W Hf蛍光ランプ | 326 |
4.おわりに
本施設の照明器具は,ナグモデザイン事務所の南雲勝志氏がデザインを行なった。南雲氏からは厳しい条件の要望があったが,それに対し現状の技術に甘んじる事無く,常に上を目指し,素材の検証や新しい照明手法の検討など,現場での照明実験や試作を重ねてやっと目標のスペックが実現できた。
最後に,豊洲埠頭開発の照明計画するにあたり,ご指導,ご協力いただいた皆様に感謝の意を申し上げる次第である。
この記事は弊社発行「IWASAKI技報」第16号掲載記事に基づいて作成しました。
(2007年3月14日入稿)
納入事例
テクニカルレポートに掲載されている内容は、原稿執筆時点の情報です。ご覧の時点では内容変更や取扱い中止などが行われている可能性があるため、あらかじめご了承ください。