施設報告

トヨタカローラ新潟本社亀田インター店の照明設備 - 省エネと魅力的な展示空間の両立 -

株式会社ライトキューブ 設計企画部

キーワード

カーショールーム,昼光利用,自動調光システム,調光可能形セラミックメタルハライドランプ

1.はじめに

図1 本社棟夜景

トヨタカローラ新潟本社亀田インター店(新潟県新潟市江南区)は,別の場所にあった同社新潟本社に,ショールームの機能を新たに併設し移転新築され,2009年1月にオープンした。約1200m²の敷地に新車展示の本社棟と中古車展示のカーロッツ棟の2つの建物が屋外展示場を挟んで建っており,本社棟は1階・2階合わせて最大20台の車が展示可能な大型ショールームである(図1)。

当初より施主・設計事務所から省エネ・省メンテナンスの要求があり,高効率・長寿命ランプや器具効率の高い器具の採用を積極的に行った。

2.照明設計

2.1 設計コンセプト

車を展示するショールームの特性上,演色性と心地よさを第一に展示車への演出効果を発揮しやすい適切なベース照度を設定し,さらに昼光利用などを用いることで省エネ・省メンテナンスを実現する。

2.2 照明設備

ショールーム内照明は主として高効率ファセット反射鏡を用いた器具(器具効率75%)を使用し,少ない台数で従来と同一の照度を得ている。光源は演色性に優れたセラミックメタルハライドランプを使用し,展示室は4300Kの爽やかな光にて,待合ラウンジ・商談コーナーは3200Kの温かみのある光にてそれぞれ照明している(図2)。

屋外展示場には広範囲を均斉良く照明するため,12mのポールを2基設置,投光器を8灯ずつ取り付けている(図3)。

図2 ショールーム

図3 屋外展示場

2.3 照明手法

ショールームのベース照度は明るすぎない,ほどよい明るさを設定し,1階の天井(高さ4.4m)にライティングレールを取り付け,車体当て照明には配光角22°のグレアキャップ付スポットライトを使用して,新車の輝きを保ちながらグレアの少ない照明を実現した。その他にベース照度を取るための配光角59°の2種類のスポットライトを使用した。結果ベース照度600ℓx,重点照度2200~2900ℓxが得られた(机上面0.9m実測値)。

また1階東面・北面窓際のダウンライトには,昼間の外光を考慮しセンサを2ヶ所設置,調光可能形セラミックメタルハライドランプ150Wを自動調光システムと組み合わせた。調光は,明るさ50%・電力60%まで調光可能である(図4)。

建物入口に位置する吹抜けは天井高9.5mのため,梯子でメンテナンス可能な高さの壁面にアッパーブラケットを設置し,鉛直面照度を得ると共に,壁や天井からのバウンド光にてベース照度100ℓx程度を得ている。また,1階受付カウンターは2階天井面よりスポットライトにて照度700ℓxを確保し,メンテナンスを容易にしている(図5,図6)。

図4 ショールーム東面窓際

図5 吹抜け

図6 吹抜け照明計画図(断面)
MT150FCEH-W/S
使用器具
LC17301+LC17325
ランプ
MT150FCEH-W/S
特長
セラルクス用の間接照明ブラケット。ランプ性能を十分発揮させるために反射板を専用設計としている。
また壁面への光も附属の遮光板を調整して制御することができる。シンプルで洗練されたフォルム。
電子安定器を内蔵することで安定器設置場所,二次側配線の問題を解決し,簡易施工で灯体と一体化するデザイン。
LC46041
使用器具
LC46041
ランプ
MT150CEH-W/S
特長
グレアキャップ付きで不快なグレアをカットするセラルクス150W用スポットライト。
吹抜け部分では,アッパーと下向きの両方に使用する。
HCF1522BHE/W
使用器具
HCF1522BHE/W
ランプ
MT150CEH-W/S
特長
電子安定器一体型の器具で,取付方向が自由自在。狭角24°の配光で,狙った場所に効率よく高品質な光を届ける。セラルクス150Wランプ使用。
2階天井付けとすることで,ランプメンテナンスのしやすさに配慮する。

図6 吹抜け照明計画図(断面)

整備工場は店内から見渡せるため,店内とのつながり感を損なわないよう透過型のセードペンダントを使用して,均一に照度500ℓxを確保し,明るく開放的な雰囲気としている(図7,図8)。

図7 待合ラウンジ

図8 整備工場

事務室ではHf蛍光灯を使用し,ルーバ付き器具にてグレアの少ない環境としている(図9)。化粧室内には人感センサを取り付け,必要な時のみ点灯する。

図9 事務室

2.4 設計特性

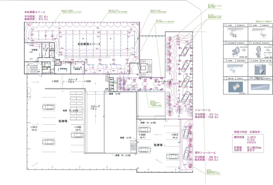
照度分布図は,図10および図11の通りである。

主な納入器具
  • L-CUBE ダウンライト 150W(リセット機能付調光可能形) - 11台
  • L-CUBE スポットライト 150W - 130台
  • L-CUBE ダウンライト 70W - 23台
  • L-CUBE スポットライト 70W - 53台
  • 屋内ブラケット 150W - 6台
  • 屋内シーリングライト プロフォルム®Ζ - 34台
  • 安定器内蔵形投光器 アーバンアクト®β/中角配光 - 43台
  • 投光器 アイスポラート®D 1000W用 - 16台
  • 安定器内蔵形投光器 ユニスポット® 400W用 - 8台ほか
主な納入ランプ
  • セラルクス® 4300K/150W/E26
  • セラルクス® 4300K/70W/E26
  • セラルクス® 4300K/70W/G12
  • セラルクス® 3200K/70W/G8.5
  • セラルクス® 400W拡散形
  • FECマルチハイエース 1000W
  • FECマルチハイエースH 400W ほか

図10 本社棟1階照度分布図

図11 本社棟2階照度分布図

3.おわりに

郊外立地の大規模な建物での計画であったため,照明器具の平米あたりの電気容量(計画時1階:15VA/m²)を極力抑えながら,光の抑揚や均斉度などによって魅力的な,また快適な空間を保つことに留意した。
高演色性と適切な明るさによって,実際オープン前・宣伝前にも関わらず多数の来店客があり,照明による訴求効果があったと施主に喜んでもらえることができた。時間を経るごとに省メンテナンスやランニングコストの削減などの効果が表れ,さらに本施設に貢献できることを願う。

最後に,照明設計及び施工にあたりご指導,ご協力を頂いたすべての皆様に心より感謝の意を申し上げる。

この記事は弊社発行「IWASAKI技報」第21号掲載記事に基づいて作成しました。
(2009年11月11日入稿)


テクニカルレポートに掲載されている内容は、原稿執筆時点の情報です。ご覧の時点では内容変更や取扱い中止などが行われている可能性があるため、あらかじめご了承ください。