施設報告

キューピット出来島店

営業本部 東日本営業部 新潟営業所
営業本部 西日本営業部 熊本事務所

キーワード

キューピット出来島店,新潟市,食料品,配光可変

1.はじめに

図1 キューピット出来島店

キューピット出来島店(新潟県新潟市中央区)は,新潟市東区に本社を置き,赤いハートに白い虹のような模様が特徴のスーパーマーケットチェーン店である。青果・鮮魚・畜産・惣菜などの食料品を中心に販売を行なっている。(図1)

新規オープンから8年余りが経過し,設備の省エネによるリニューアルと店内の雰囲気向上を目的として,照明設備の改修と内外装の一新が行なわれた。

2.照明設計

2.1 設計コンセプト

図2 既存照明設備

キューピット出来島店の既存照明設備は,FHP105W2灯用逆富士形蛍光灯を全般照明に使用し,ハロゲン電球スポットライトを局部照明に使用されていた。(図2)

嗜好食品,日配食品エリアは,そのままの形で残し,青果・鮮魚・精肉惣菜エリアの照明について,改修を行なうこととした。

これにより,入り口から続く一連の買い物ルートが新しい照明設備となり,壁面の演出と共に買い物する際にお客様の目を引くように配慮した。(図3)

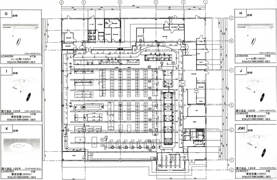
図3 照明配置図

2.2 色温度

店内の雰囲気は色温度4300Kと3200Kの2種類の70Wセラミックメタルハライドランプを使用した。壁面などの演出照明においては3200Kのランプを使用し,店内の基本となるベース照明は4300Kのランプを使用し,色温度の違う2種類のランプを効果的に使用することで,店舗内にアクセントをつけた。

2.3 熱・紫外線対策

熱の問題は,食品にとって大敵である。既存設備は,ハロゲン電球が与える熱について懸念され,空調設備の使用も増大していたが,新設設備では,ハロゲン電球3灯の割合で1灯のセラミックメタルハライドランプを使用することで,空調設備の使用も減少した。

また,セラミックメタルハライドランプのUVカットコーティング処理により,UVを約90%カットすることで,食品に与える影響が減少した。


テクニカルレポートに掲載されている内容は、原稿執筆時点の情報です。ご覧の時点では内容変更や取扱い中止などが行われている可能性があるため、あらかじめご了承ください。