施設報告
国立霞ヶ丘競技場 秩父宮ラグビー場 夜間照明設備 - ラグビー場照明設備施設例 -
営業本部 東日本営業部 宇都宮営業所
営業本部 東日本営業部 東京広域営業所
キーワード
秩父宮ラグビー場,増反射膜付投光器,メタルハライドランプ,仮設用電源
3.設備概要
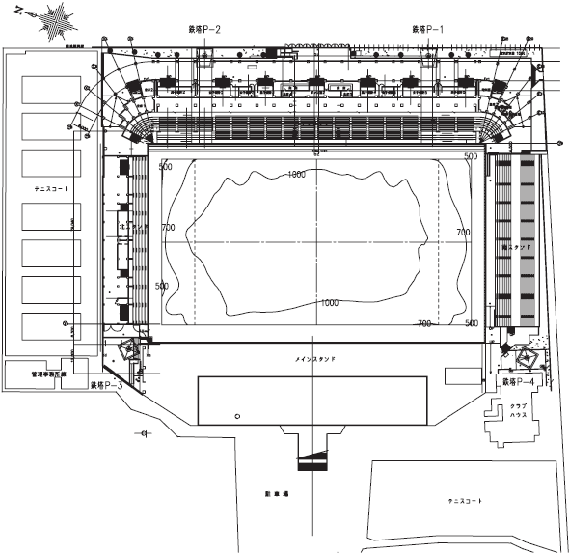
3.1 照明鉄塔
鉄塔の配置は,既設競技場の都合上メインスタンド側とバックスタンド側とで異なる。
メイン側は観客席屋根を回避するコーナーに2箇所配置し,バック側は観客席裏側サイドに2箇所配置するもので,変則4基制の配置である。(図3)
鉄塔高さは,東京都風致地区の条件により,競技場GL面より最上段H=30mである。
鉄塔及び架台は,普通鋼材に防錆塗装(エコストコート・プライマー)を施し,仕上げは,環境対応の塗装色(日塗工 S23-255)である。
本設備の改修は,競技場のスタンドや隣接する既設建築物の影響で敷地や空間が狭い事など,施工上大きな課題があった。従って鉄塔形状は,現地搬入の都合と重機吊り能力に適した構造を追求し,塔体に3~4箇所のジョイント部を設けた。(図4)
架台は,1.5kW投光器が9列4段の36灯用で2分割した構造であり,下段と上段の架台は上空で組立てた。(図5)
鉄塔基礎は,コンクリート直接基礎構造であり,競技場GL面レベルからの高さを統一するため,設置箇所により約3~6m深く掘下げている。鉄塔ハッチ部の高さは,鉄塔設置する地表面よりGL面+1.0m地点になるように設けた。
図5 架台組立て状況
3.2 ランプ及び照明器具
ランプは高効率メタルハライドランプM1500Wを採用し,CIEカラーテレビジョン撮影に対応したRa=65以上を実現した。
照明器具は器具効率を重視し,HIDランプ丸形投光器アクロスター™(狭角配光+増反射膜付)を採用した。(図6,図7)
このランプと照明器具の組合せにより,設計照度の初期水平面照度1000ℓx以上を満足する結果となった。(図8)
図6 投光器設置状況(正面)
図7 投光器設置状況(背面)
テクニカルレポートに掲載されている内容は、原稿執筆時点の情報です。ご覧の時点では内容変更や取扱い中止などが行われている可能性があるため、あらかじめご了承ください。


