施設報告
東京ミッドタウン ミッドタウン・ガーデンの照明
営業本部 東日本営業部 東日本技術設計センター
営業本部 営業部開発部 商業施設課
キーワード
東京ミッドタウン,防犯灯,無線LAN,ユビキタス,情報インフラ,LED,安全・安心
1.はじめに
東京都港区の六本木交差点近くの開発地区面積10ヘクタール以上という広大な防衛庁の跡地に2007年3月30日にオープンした東京ミッドタウンは,オフィス,ホテル,美術館,ショップ,住宅,公園などが集結し,6棟のビルと広大なミッドタウン・ガーデンを擁した複合都市であり,ビジネスと文化の発信拠点として注目されている。この地区は,わずか半径1マイル(約1.6km)の中に,40を超える大使館と9つのインターナショナルスクールが立ち並ぶ,国際色が豊かであり,多くのデザイナーやクリエイターなど「いま」をつくるビジネスパーソンが集う,感度の高い街である。納入した照明設備の概要を紹介する。(平成19年3月竣工)
2.照明設計
東京ミッドタウン敷地内の緑地には,サクラやクスノキなど防衛庁跡地に残された約140本の樹木が引き継がれており,豊かな景観を育んでいる。周囲の景観に調和するシンプルで洗練されたデザイン,上方向への漏れ光を完全にカットし,自然環境への影響を最小限に抑えた照明器具の選定を行ない,ジェネロを採用した。光源には,高効率・高演色形セラルクス®3200Kを使用し,車道部の広さや空間のデザイン性に合わせ,150W(MT150CE-W/S-G)7基と70W(MT70CE-W/S-G)22基を配置した。(図1,図2,図3)
図2 街路灯(昼間)
図3 街路灯(夜間)
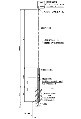
敷地内に9台設置されたスーパー防犯灯は,施設外構での監視通報機能に防犯などを取り入れた従来の機能に加え,無線LANのアクセスポイントやユビキタス通信などの情報インフラ機能を搭載した多機能な街路灯であり,LED光源を当社が納入した。円盤状の外周に,白色LED(通常時)と赤色LED(非常時)を24個,さらに防犯カメラ用の光源としてジャンボLEDを4個ダウンライトのように設置している。あたたかみを感じさせる緑の空間の中,浮遊感のある白色の光がアクセントとなり,その存在をさりげなく感じさせる事で,憩いの空間に安心感を与えている。(図4,図5,図6)
図4 スーパー防犯灯(昼間)
図5 スーパー防犯灯(通常時)
図6 スーパー防犯灯(非常時)
3.おわりに
これらの照明設備は,緑地の空間において快適な光環境を創出すると同時に,省エネやコスト削減も実現している。また,東京ミッドタウンを訪れる人々に安全・安心を提供している。
最後に,本事業の施主であります三井不動産株式会社様をはじめ,ご尽力を賜りました方々に厚く御礼を申し上げる。
この記事は弊社発行「IWASAKI技報」第18号掲載記事に基づいて作成しました。
(2008年5月31日入稿)
納入事例
テクニカルレポートに掲載されている内容は、原稿執筆時点の情報です。ご覧の時点では内容変更や取扱い中止などが行われている可能性があるため、あらかじめご了承ください。
