技術資料
広スパン枠無トンネル照明器具
製造本部 照明機器開発部 第一開発課
キーワード
トンネル照明器具,広スパン,枠無,器具効率,コスト縮減,環境配慮,小形化,省施工
「レディオック トンネル シリーズ」のご案内
コンパクトなボディにさまざまな工夫を施し、トンネル、アンダーパス、カルバートなどで車の安全走行を支える「レディオック トンネル シリーズ」の詳細は以下よりご覧いただけます。
- レディオック トンネル シリーズ
1.はじめに
トンネル照明器具は,トンネル横断面方向の配光制御に開発の重点が置かれており,道路照明のようなトンネル縦断面方向に対して高度に配光を制御した照明器具はこれまで一部で開発されていた程度であった。そこで,道路照明器具に用いられている反射鏡設計技術を,トンネル照明器具に活用した広スパン対応のトンネル照明器具の商品化を既に行なった。
しかしながら,トンネル照明器具の外郭部及び内部部品の板金材料に使用しているステンレス鋼材の価格の高騰は著しいものがあり,近年,その価格上昇が顕著である。その対策として,ステンレス材の使用量を低減させた枠無プレス加工式トンネル照明器具が市場に現れ始めた。
そこで,こうした情勢に対応して,ステンレス製前面枠を削除することにより,コスト改善だけでなく,器具の開口部を全て透明ガラスカバーで覆うことにより器具効率の改善を図ることも可能になる,という利点を生かし,広スパン対応枠無プレス式トンネル照明器具の開発を行なった。
2.商品概要
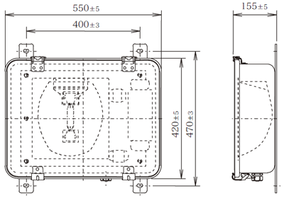
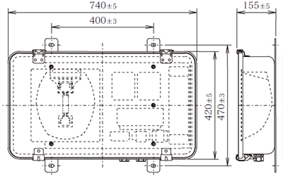
2.1 外形・構造
器具の外形寸法,構造を図1~図4に示す。
図1 一般形器具寸法図
図2 一般形器具構造
図3 電池内蔵形器具寸法図
図4 電池内蔵形器具構造
2.2 商品ラインアップ
| ランプ | 一般形 | 調光形 | 電池内蔵形 | 電池内蔵調光形 | |
|---|---|---|---|---|---|
| 両口金形高圧 ナトリウムランプ |
NHTD60(60W) | ○ | ○ | ○ | ○ |
| NHTD110(110W) | ○ | ○ | ○ | ○ | |
| 両口金形セラミック メタルハライドランプ |
MTD60CEH-TN(60W) | ○ | ○ | ○ | ○ |
| MTD70CEH-TN(70W) | ○ | ○ | ○ | ○ | |
参考文献
- 前川:広スパン対応型トンネル照明器具,IWASAKI技報,No.11,pp.34-47(2004).
- 赤坂:広スパン対応型HIDトンネル照明-実験概要報告-,IWASAKI技報,No.11,pp.6-11(2004).
テクニカルレポートに掲載されている内容は、原稿執筆時点の情報です。ご覧の時点では内容変更や取扱い中止などが行われている可能性があるため、あらかじめご了承ください。