施設報告

熊本駅東口駅前 帯山線・交流広場LED照明

国内営業本部 営業技術部 LCS
国内営業本部 東京広域営業所 第二営業課
国内営業本部 福岡営業所 第三営業課 熊本事務所
国内営業本部 広島営業所 技術課

キーワード

LED,照明演出,LEDioc防湿形ユニット,熊本駅,帯山線,交流広場

1.はじめに

熊本駅周辺整備計画は,平成22年度末の九州新幹線工事完成を含め,平成17年6月に熊本県・熊本市で策定した熊本駅周辺地域整備基本計画に基づき平成30年までを完了目標とした事業である。長期間にわたり様々な施設の整備が実施される中,熊本駅東口駅前につながる帯山線と交流広場の景観照明としてLEDioc防湿形ユニットが採用された。(図1)

図1 帯山線・交流広場平面図

帯山線は熊本駅東口正面から延びた幅員32mの幹線道路であり,車道にL-PAZU™+FECサンルクスエース™150W(2100K),歩道に特注器具+セラルクス®70W(3200K)が納まっている。交流広場は帯山線に隣接したオープンスペースで,ポールライト等のエリア照明となる明かりは一切ない場所である。

2.照明計画

2.1 目的

帯山線は,熊本駅東口から白川・坪井川に向かって緩やかな上り坂になっており,歩道の歩行者専用道と自転車専用道の間に設けられた高さ400mmの植栽帯の自転車専用道側側面に間接照明が計画された。歩行者と自転車の分岐を明確にし,安全性を図る事と,柔らかな光のラインが植栽帯に沿って上っていく景観をつくる事を目的としている。

また,交流広場の大きく起伏したベンチの下にも同様な間接照明を設置し,足元の明かりを取ると同時に柔らかな光のラインをつくり,くつろぎ空間の演出を意図している。

2.2 色温度と設置間隔

設置するLEDの色温度は,白色と電球色で検討された。模型を作製し,現地の熊本駅周辺設備事務所と熊本駅周辺地域都市空間デザイン会議の下で検証された。背景にある道路照明が高圧ナトリウムランプであることと,LEDの明るさの差で白色に決定された。

光をラインで見せるため,LEDの取付け間隔の検討がされた。途切れのない光のラインを作るのには間隔を極力狭めなければならなかったが,植栽帯とベンチが途切れ途切れに設置されている事もあり,350mmの等間隔(ユニット間150mm)となった。(図2)

図2 検討用模型(白色・電球色:取付け間隔250mm)

3.設備概要

3.1 取付方法

帯山線の植栽帯と交流広場のベンチ下のスペースは,G.L.から高さ200mm,奥行き65~75mmと極小であった。(図3,図4)

図3 帯山線植栽帯断面図

図4 交流広場ベンチ断面図・立面図

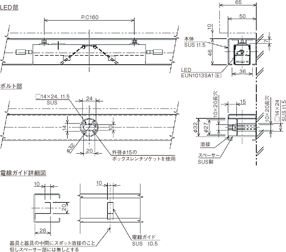
このスペースに対して,LED発光面を下方向(床面)に設置し,壁面と床面を照らさなければならなかったため,LEDioc防湿形ユニットを取付ける台座を作成し,それをブラケットのように横から取付ける構造とした。設置側の植栽帯とベンチにアンカーを打ち,器具側にスペーサーを設けボルトで固定する方法を取った。(図5,図6)

図5 部分詳細図

図6 帯山線施工現場


テクニカルレポートに掲載されている内容は、原稿執筆時点の情報です。ご覧の時点では内容変更や取扱い中止などが行われている可能性があるため、あらかじめご了承ください。